| Ort: | Santa Monica, LA |
|---|---|
| Größe: | 40m² |
| Leistung: | Entwurfsplanung |
| Jahr: | 2022 |
| Bauherr: | Privat |
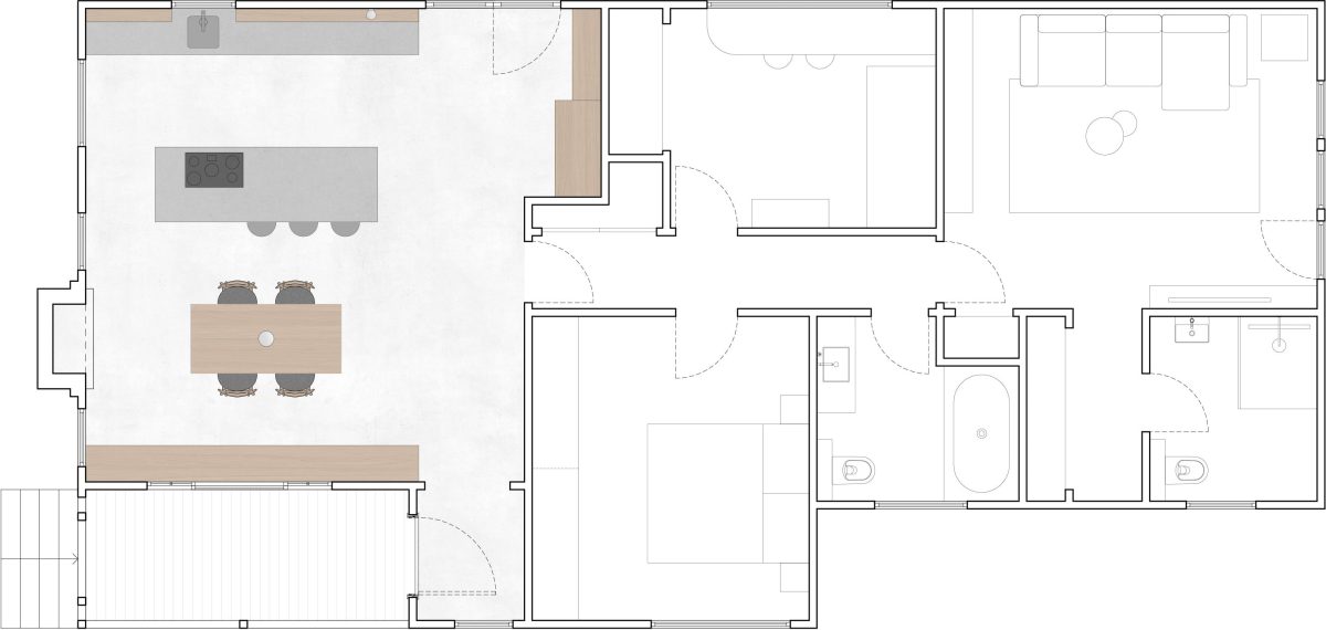
Die Küchenumgestaltung in Santa Monica fokussiert sich auf Lichtführung, Proportion und materielle Klarheit. Im ruhigen Wohngefüge von Santa Monica wurde der bestehende Grundriss zu einem offenen, hellen Raum weiterentwickelt, der eine starke visuelle Verbindung zum umliegenden Grün schafft.
Eine reduzierte Material- und Farbpalette – weiße Flächen, feine Texturen sowie warmes Holz – erweitert die räumliche Wahrnehmung und betont den natürlichen Tageslichteinfall. Großzügige Öffnungen rahmen das Außen-Grün und bringen Tiefe sowie eine ruhige Atmosphäre ins Innere.
Der Entwurf verbindet funktionale Präzision mit einer zurückhaltenden, warmen Stimmung. Jedes Element ist so angeordnet, dass es Offenheit, Klarheit und alltäglichen Komfort unterstützt.
Sie müssen den Inhalt von reCAPTCHA laden, um das Formular abzuschicken. Bitte beachten Sie, dass dabei Daten mit Drittanbietern ausgetauscht werden.
Mehr InformationenSie sehen gerade einen Platzhalterinhalt von Facebook. Um auf den eigentlichen Inhalt zuzugreifen, klicken Sie auf die Schaltfläche unten. Bitte beachten Sie, dass dabei Daten an Drittanbieter weitergegeben werden.
Mehr InformationenSie sehen gerade einen Platzhalterinhalt von Instagram. Um auf den eigentlichen Inhalt zuzugreifen, klicken Sie auf die Schaltfläche unten. Bitte beachten Sie, dass dabei Daten an Drittanbieter weitergegeben werden.
Mehr InformationenSie sehen gerade einen Platzhalterinhalt von X. Um auf den eigentlichen Inhalt zuzugreifen, klicken Sie auf die Schaltfläche unten. Bitte beachten Sie, dass dabei Daten an Drittanbieter weitergegeben werden.
Mehr Informationen