Bauphase
Unten noch einige Impressionen von der Baustelle. Das Erdgeschoss wurde vollständig entkernt. Eine neue Bodenplatte wurde eingebracht, um schwellenlose Türübergänge zu schaffen.
| Ort: | Berlin |
|---|---|
| Größe: | 128 m² BGF |
| Leistung: | LP 1-8 |
| Jahr: | 2021 - 2023 |
| Bauherr: | Privat |
| Fotos: | Nils Koenning |
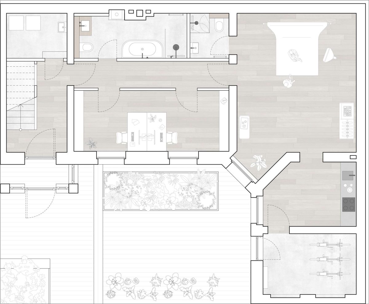
Das um 1900 errichtete Quergebäude war ursprünglich ein Wohn- und Geschäftshaus mit einer Werkstatt für Vergoldung im Erdgeschoss. Dieses sollte zum Atelier mit dazugehörigen Nebenräumen umgebaut werden.
Den Grundriss der ehemaligen Werkstatt haben wir dem heutigen Baurecht entsprechend umgeplant. Die Gewerbeeinheit im Parterre hat jetzt einen neuen Zugang über das Haupttreppenhaus. Zusätzlich führt ein separater Nebeneingang durch den Fahrradraum in diesen Bereich. Die zwei entstandenen Atelierräume und das dazugehörige Bad/WC erhalten einen eigenen Flur. Im Gelenk des Baukörpers grenzt eine Teeküche an das größere der beiden Ateliers an.
Nach dem Umbau sind die Grundrisse klar und funktional gegliedert. Natürliche Materialien und eine dezente Farbpalette unterstreichen das zeitgemäße und reduzierte Gesamtbild:
In den Atelierräumen, Fluren und in der Küche liegen jetzt Holzdielen aus Eichenholz. Türen, Wände und Fenster sind in Weiß- und Grautönen gehalten, was die warme Ausstrahlung des Holzbodens betont. Anthrazitfarbene Bodenfliesen und matt schwarze Armaturen im Bad bilden einen ästhetischen Kontrast.
Somit ist die Transformation einer ehemaligen Remise-Werkstatt in zwei zeitlos-schöne Ateliers zum Arbeiten mit darüberliegendem Wohnen gelungen.
Unten noch einige Impressionen von der Baustelle. Das Erdgeschoss wurde vollständig entkernt. Eine neue Bodenplatte wurde eingebracht, um schwellenlose Türübergänge zu schaffen.
Sie müssen den Inhalt von reCAPTCHA laden, um das Formular abzuschicken. Bitte beachten Sie, dass dabei Daten mit Drittanbietern ausgetauscht werden.
Mehr InformationenSie sehen gerade einen Platzhalterinhalt von Facebook. Um auf den eigentlichen Inhalt zuzugreifen, klicken Sie auf die Schaltfläche unten. Bitte beachten Sie, dass dabei Daten an Drittanbieter weitergegeben werden.
Mehr InformationenSie sehen gerade einen Platzhalterinhalt von Instagram. Um auf den eigentlichen Inhalt zuzugreifen, klicken Sie auf die Schaltfläche unten. Bitte beachten Sie, dass dabei Daten an Drittanbieter weitergegeben werden.
Mehr InformationenSie sehen gerade einen Platzhalterinhalt von X. Um auf den eigentlichen Inhalt zuzugreifen, klicken Sie auf die Schaltfläche unten. Bitte beachten Sie, dass dabei Daten an Drittanbieter weitergegeben werden.
Mehr Informationen