Gemeinschaftshaus in der Hafencity

Arbeiten

Gemeinschaftshaus in der Hafencity

Arbeiten
Ort: Hamburg
Größe: 580 m² BGF
Jahr: 2019
Status: Wettbewerbsstudie
Auslober: HafenCity GmbH

Das Gemeinschaftshaus am Baakenpark liegt am westlichen Rand des Quartiersparkes und fungiert als städtebauliches Entree: Der Kubus öffnet sich großzügig zur Wasser- und Promenadenseite, um Besucher einzuladen. Durch die Fenster werden die Funktionen Co-Working und Café sichtbar. Es entstehen Blickbeziehungen von innen nach außen und umgekehrt. Gleichzeitig verbindet der Bau Park- und Promenadenniveau.

Die Fassade wird mit rot lasiertem Fichtenholz verschalt und durch vertikale Lamellen strukturiert. Die Gestaltung ist angelehnt an die Schiffscontainer im Hafen. Das Erdgeschoss wird in Stahlbetonbauweise ausgeführt und mit Dammbalken und Flutschotts abgesichert. So ist das Gebäude vor Hochwasser geschützt. Das OG ist in Holzständerbauweise mit Brettschichtholzdecken konstruiert, das Dach wird begrünt.

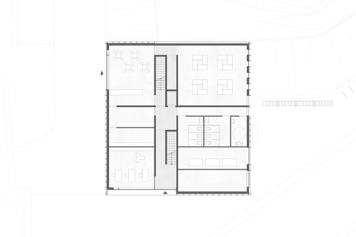
An der Promenadenseite liegt der Haupteingang, dessen durchgestecktes Foyer zur Parkebene führt. Ein Funktionskreuz für Toilettenräume, Lager, Küche, Treppen und Aufzug strukturiert das Erdgeschoss. Der Zugang zu Werkstatt, Müll, WC und Außenlager erfolgt von der rückseitigen Fassade.

Im Obergeschoss gliedern zwei Funktionskerne mit Treppen, Aufzug und Lager den Raum. So entstehen flexible Bereiche für die gemeinschaftliche Nutzung, die sich verbinden lassen: Mehrzweckräume mit Café und Außenterrasse oder umgekehrt, mittig das Foyer. Die temporäre Möblierung wird in den Lagerräumen verstaut und nach Bedarf genutzt.

Energetische Vorgaben sind durch den Einsatz ökologischer Materialien und Bauprodukte eingehalten. Die natürliche Fensterlüftung sorgt für ein gutes Raumklima.